天友設計 | 天友零舍——國內首座近零能耗建筑的設計實踐
天友設計在北京大興魏善莊那個叫半壁店的小村莊已經有五年了,從低能耗農宅到農村廁所革命,摸索了零煤耗的鄉村能源系統,探討了裝配式的衛生公廁。鄉村建筑能不能更進一步,實現近零能耗呢?

天友·零舍

低能耗零煤耗農宅改造

裝配式節水廁所
2019年,在半壁店的村口,一座農宅被改造成了近零能耗建筑——零舍,這也是國家標準《近零能耗建筑技術標準》GB/T51350-2019正式實施后國內第一座建成并獲得評價標識的近零能耗建筑。


從村口看建成前后的對比

近零能耗評價標識

零舍-nZEB(nearly Zero Energy Building)
我們希望通過零舍的改造可以探索一種低成本的近零能耗農宅的實現方式,保留農宅的傳統建筑特色,在農宅內引入新的功能,實現功能轉換與鄉村復興。

ONE
—
什么是近零能耗建筑?
通俗來講,近零能耗建筑是通過被動式建筑設計最大幅度降低供暖、空調、照明需求,通過主動技術措施最大幅度提高能源設備與系統效率,充分利用可再生能源,為使用者提供舒適室內環境,其能耗水平較國家標準降低60%~70%以上。

零舍室內的綠色書屋
TWO
—
技術上如何實現近零能耗?
▍ 被動式超低能耗技術
天友·零舍項目為單層鄉居改造項目,原建筑體型系數較大,節能不利。性能化設計是近零能耗建筑設計的基本方法,通過性能優化,我們一方面在原建筑基礎上增設被動式陽光房、樓梯間等過渡聯系空間,降低建筑的體型系數,另一方面采取被動房標準的圍護結構保溫性能來保證建筑的節能效果。

性能化設計的優化過程
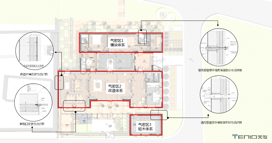
一系列的技術措施都是有針對性地面向鄉居建筑的特點。針對鄉村一層建筑,更注重地面和屋面的保溫;針對改造建筑氣密性處理的難題,將建筑分為三個氣密區;針對無熱橋,將附加的建筑空間結構體系獨立,與主體建筑脫離;針對鄉村紅磚建筑風貌,外保溫的基礎上又砌筑了紅磚,形成夾心保溫,兼顧了建筑風貌和建筑氣密性能。

附加在建筑南側的被動式太陽房,形成氣候緩沖空間


氣密區分區及節點構造

夾心保溫墻體外觀
通過天窗和風塔改善鄉村建筑天然采光和自然通風的不足。天窗可以看到北側高大的楊樹,而上屋面的樓梯間,做成了一個銅表皮的風塔。

威盧克斯天窗改善了室內的光環境


透空的上人屋頂和樓梯間風塔
天友·零舍不僅希望實現近零能耗,還希望在該項目中探索不同結構體系實現近零能耗的技術路徑和構造節點。因此我們分別采用磚木結構(保留單元)、輕木結構和模塊結構(新建單元)三種結構體系。

立面的三個體量對應了三種結構體系

三種結構體系應用及近零能耗工程做法示意圖

磚木結構的零舍改造室內

輕木結構室內
裝配式模塊單元采用SMART-6輕鋼裝配單元結構體系,內填外貼兩種保溫材料,以保證系統的傳熱系數和氣密性,在工廠完成結構及內裝修,整體運輸到現場完成安裝及外裝飾。

模塊居住單元室內
▍ 可再生能源補充
零舍實現了光伏建筑一體化的有機結合。屋面結合傳統民居雙坡形式選擇的非晶硅太陽能光伏瓦,而被動式陽光房的玻璃屋頂采用了彩色薄膜光伏,總裝機為7.1kWp,以并網的方式為建筑提供電能。居住模塊設置太陽能熱水系統為廚房衛生間提供熱水。超低能耗的建筑盡可能地減少耗能,再借助可再生能源的產能,從而實現近零能耗。

光伏瓦及彩色薄膜光伏

陽光透過彩色薄膜光伏頂落在陽光房的墻面上


院墻用柔性光伏紙制作了一個藝術裝置,可以給村民手機充電
THREE
—
空間上如何實現鄉村風貌?
零舍的功能復合了展示、辦公、圖書、會議以及居住,可以成為鄉村創客、低碳展示的使用空間。在空間模式上,保留了原始兩進院落的布局,用太陽房、樓梯間風塔等即作為聯系空間,又作為氣候緩沖空間。


復合功能的平面布局

被動太陽房作為聯系的公共空間

木結構的門廳連接居住和辦公部分
景觀延續的生態和低碳的主題,設置幾個主題庭院——南側的太陽能花園、中心的水院、北側的零碳花園以及樹林菜園。水院成為雨水收集的景觀水池,而零碳花園則利用原有建筑拆下來舊磚舊瓦等廢棄材料設計而成,中間種了一棵穿過二層平臺的樹,以碳匯實現這個小花園的零碳。北側沿建筑設計了錯落的模塊式菜園,成為村口大樹下的景觀。

中心的水院,把原民居拆下來的屋面瓦鋪到了池底

零碳花園

樹林下的模塊式一米菜園
零舍的綠色技術更希望以藝術化的方式呈現出來,因此彩色光影、廢棄材料、原始墻繪、垂直綠化都成為建筑表現力的手段。

改造的展廳中有一系列技術的藝術化展示

打開收集的舊窗是大師油畫的效果圖

有機玻璃切片般的并置了十幾個零舍剖面


木絲板吸聲墻DIY了一幅水墨山水

圍墻上用拆除的舊窗做出了LOGO

夾心保溫重繪了局部的原建筑山墻的墻繪,仿佛它們一直存在
FOUR
—
經濟上如何實現可接受的造價?
▍施工:摸索中前行(一把辛酸淚)
PART 1 關于成本
天友·零舍是北京市科委課題的示范項目,我們提出:“探索鄉村的近零能耗建筑?”,這個決定的直接影響是建造成本的增加,那么問題來了:
“錢從哪里來”?
“省錢”+“贊助”!
所以,在項目初期無論是建筑材料、施工隊伍、門窗、設備系統等,我們都是貨比三家,成本省了再省,既要保證建成效果又要控制成本,好難。
再次感謝支持我們項目(被我們挾持)的材料供應商們。
PART 2 關于施工
受項目成本影響,我們選用地方施工隊來施工(其實,有過建造經驗的施工隊,好貴),我們是第一次設計近零能耗建筑,他們是第一次施工近零能耗建筑,我們聯手開啟了這段神奇的旅程。
既然省了錢,總要費點力氣才能平衡的。為了能更好的讓老黃(現場施工隊總管)更直觀的了解近零能耗建筑無熱橋、高保溫、氣密性等節點做法,我們的建筑師詳細到每一個施工步驟、每一個節點控制都用圖示化的方式表現,并在現場進行施工交底,再次感謝施工隊伍超強的領悟能力及超高的技術完成度。

裝配式模塊由設計進行的施工控制
終于,在廠家、設計及施工隊伍完美的配合下,天友·零舍項目順利竣工,項目平米造價也完美的控制在正常近零能耗建筑平米造價的65%左右。



設計施工過程中的油畫草圖
項目信息:
項目策劃:天友設計、天津大學建筑學院
建設單位: 天友設計
建筑師:任軍、郭潤博、邸揚、姜楠
結構師:于學增
設備師:劉冰、韓帥、劉衛
項目管理:張寶軍、陸曉濤、郝林沖、肖榮彥
攝影師:賀之涵、任軍
施工單位:北方國興
施工管理:中建六局
供應商:
太陽能光伏:漢能
裝配式模塊:博遠箱房
被動門窗:極景門窗
天窗:威盧克斯
新風一體機:河北建科
能源監控:北京逸海京通科技
銅板:華源銅板
仿磚水泥板:日吉華
麥秸板:諾菲博爾
石塑地面:LVT石塑地板
太陽能熱水:四季沐歌
- END -