在傳統戶型的基礎上如何進行優化和微創新,將健康、舒適、便利,融入戶型設計是每位設計師的責任。
天友研發部整理出在這段特殊時期中被放大的幾個居住痛點,從落地性角度幫助大家找出合理的解決之法。
居室數量少,沒有獨立空間上課、辦公、開展個人興趣愛好。人們才意識到一個明亮舒適的獨立空間將會大大提升在家工作、學習效率。因此未來大多數家庭三室(兩居室一書房)才是標配。哪怕戶型小配置也要全。
目前市場上三室戶型面積區間在90—125㎡,常見為2-3.5開間。而經此一疫人們希望所有房間都通透、采光,有更多的房間朝陽。
明顯,板式3-3.5開間的三室戶型對身心健康更加有利。
◆傳統多層小高層產品中95㎡兩開間、120㎡三開間產品最節地,但考慮到今后客戶需求,對多面寬戶型可考慮適度加大面積,比如100㎡的3開間,125㎡的3.5開間產品來補容。當然加面積對總價的影響還需要客戶權衡,具體地塊具體分析。
◆容積率2.0以上的地塊,由于高層面寬對規劃影響不大,可以將90㎡三室3開間產品放在高層連廊戶型的中戶。
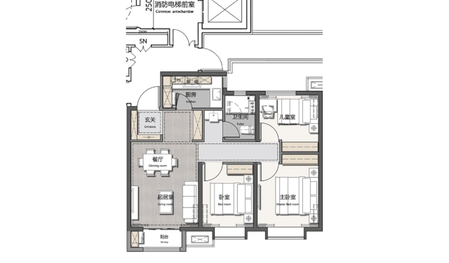
▲90平米3開間采光通風示意除了豎廳,其他常見的客廳形式有BLDK模式的通廳、方廳、L型廳、橫廳。

◆小戶型,BLDK最適用。
◆大戶型,方廳功能集中靈活性更強,面寬最小對規劃有利。

▲復合空間+洄游動線的設計
公區空間串聯,去掉傳統的走道交通,空間完整、開敞通透起到視覺放大的效果。
洄游穿梭行走的體驗使空間豐富靈動,趣味感十足。
餐廳尺寸不合理,放不下大桌子,餐椅坐人后就不能通過的問題,帶來了很多不便,而這些設計失誤源于設計師對人體工學和常用家具尺寸不了解。
再來回顧下天友研發部戶型設計教程中詳細介紹過的餐廳模塊設計。
Tip:無論獨立餐廳還是位于交通空間的餐廳我們應選取與戶型面積匹配的餐桌并預留足夠的通道。
1、餐桌至墻體滿足一人可由坐姿站立需800mm
2、餐桌至墻體滿足一人就餐一人繞行需要預留至少1200mm
獨立玄關可以為我們的家加上一道防線。但如何更科學的劃分污染-半污染-清潔區呢?
105㎡以上戶型,入戶雙流線可以很好的解決這個問題。
首先進入玄關(污染區)換鞋、扔掉口罩、把鑰匙手機等物品放在玄關處消毒。
再進入北側家政間(半污染區)將外套掛起來通風晾曬,放下采買物品或快遞進行二次消毒。從另一個進出口到廚房洗手。
最后進入屋內(潔凈區)。
如果家政間里能設置一個水點則更加完美,那么廚房也可以被劃入潔凈區。
家政間在此起到病房手術室緩沖間的作用,把病毒隔離在外。
▲家政間存放雜物(圖片來源于網絡)
屯蔬菜水果,消毒物品、清潔工具
春節闔家團圓的時刻全家人被迫宅在一起,房間不夠用!
想增加一個功能空間卻沒有可調整的余地!
如何讓戶型變得有生命適應一個家庭的變化?——預留一個可拓展、靈活可變的儲備空間。
▲橫廳可改造的(N+1)戶型
6.6米以上的橫廳分隔為
3.9米客廳+2.7米的獨立房間
預留儲備空間令大多數家庭可以從容面對家庭結構變化,即使家庭成員突然增加也能有容身之所。
這種設計是否會在疫情過后更能打動購房者呢?
綜上所述,疫后戶型設計的提升方向我們可歸納為:
一、全屋通透,增加采光通風面
二、重視客戶對精神空間的需求
三、空間尺度合理,符合人體工學
四、室內外應有過渡空間
五、重收納,挖掘公區收納潛力
六、考慮戶型的可拓展性
在這段特殊的日子里,我們的生活習慣、社交方式、價值觀念都發生了變化。對于居住環境的判斷標準也隨之改變。
未來什么才是人們心中的“理想家”?希望從這篇文章中能幫您找到一些答案。
疫情讓一座座城市仿佛按下暫停鍵,但天友人從未停下腳步...
2020,我們蓄勢待發!